PAU Nord – Zone d’activité
Village industriel comportant 2 bâtiments de 7 locaux d’activité chacun.
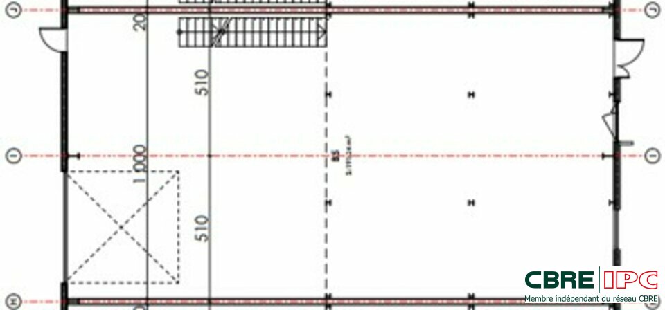
A proximité des sorties d’autoroute de l’A64, ce village proposé en VEFA sera composé de locaux d’activités de surface allant de 105 à 277 m² au sol et offrant des surface en mezzanine de 55 à 146 m² supplémentaires.
Véritable local d’activité les cellules sont traversantes offrant une véritable façade « noble » pour l’accueil et une façade arrière facilitant l’accès aux livraisons et véhicules utilitaires.
Les cellules seront livrées brut de gros oeuvre, closes et couvertes, fluides en attente.
Phase 1 – Lot B : Disponibilité immédiate
Phase 2 – Lot A : Livré en Juillet 2024
A étudier sans délai.
Visuels non contractuels
REF : 7366FL3
Les informations sur les risques auxquels ce bien est exposé sont disponibles sur le site Géorisques : www.georisques.gouv.fr.






